- $566K med. price
- 19 homes for sale
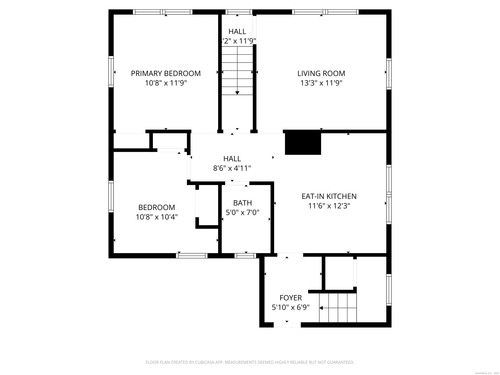
Discover this well-preserved brick multi-family home, built in 1941, offering timeless appeal and versatile living options on a spacious level double lot. Perfect for investors, extended families, or owner-occupants seeking rental income, this property features two distinct units with hardwood floors throughout, abundant natural light & thoughtful layouts as shown in the attached floor plans. The first-floor unit boasts 2 cozy bedrooms, a bright living room, an eat-in kitchen, a full bath. Flooded with natural sunlight, this unit provides a warm & inviting space with easy access to the foyer & a covered porch for outdoor relaxation. Upstairs, the second unit spans two levels with 4 generously sized bedrooms-two on the main level (including a primary) and two more on the upper floor. It includes a spacious living room, an eat-in kitchen, a full bath, and ample hall space for seamless flow. The split-level design adds privacy & flexibility, with stairs connecting the floors internally. Shared amenities enhance convenience, including a downstairs laundry room and storage area for both units. Outside, the level double lot provides plenty of green space, complemented by a detached garage for secure parking & additional storage. Nestled on a quiet, tree-lined street, this home is ideally situated close to top-rated schools, trendy restaurants & convenient shops-offering the best of suburban tranquility with urban accessibility. Don't miss this one- schedule your tour today!
Relaxed beach town with plenty to do
| Status | Coming soon |
|---|---|
| Listing date | November 27, 2025 |
| List price | $ 749,000 |
| Current price | $ 749,000 |
| Tax amount | $ 7,806 |
| Tax year | july 2025-june 2026 |
| MLS ID | #24142223 |
| List Agent | Brittany Pisco |
| List Office | William Raveis Real Estate |
Because we love Fairfield County!
© Copyright 1999 - 2025 Dagny's LLC. - 20 Windy Ridge Place Wilton, CT 06897 - Terms & Conditions