699 Daniels Farm Rd Trumbull, CT, 06611

single family home
$ 599,000 For Sale Active Feb 10, 2026
  • 3 beds
  • 2 baths
  • 1,887 sq ft
  • 1930 year built
  • 2 cars garage

About the Home

Welcome to 699 Daniels Farm Road, Trumbull, CT. This charming 3 bedroom, 2 bath home located in the desirable Hillandale neighborhood. Set on a level lot surrounded by new split-rail fencing perfect for your pups. This property offers a wonderful blend of character, comfort, and thoughtful updates. Ideally situated within walking distance to award-winning schools and just minutes from highways, restaurants, shopping, and the train station (approximately 7 miles away), the location is both convenient and highly sought-after. Inside, the first floor features a functional and inviting layout with bright, sun-filled living spaces designed for both everyday living and easy entertaining. The cozy wood-burning fireplace creates a warm and welcoming atmosphere, perfect for relaxing evenings at home. The home also includes newer mechanicals, providing added efficiency and peace of mind for years to come. The spacious detached two-car garage offers excellent versatility, with plenty of room for storage, hobbies, or the potential to create a private office or in-law setup above. Outdoors, the yard provides space to enjoy gardening, play, or simply unwind. There is a custom made chicken coop for those seeking a touch of homestead charm. Enjoy the best of Trumbull living just outside your door. Take advantage of nearby hiking trails and the Rails-to-Trails path. Stroll across the street for cider donuts, delicious coffee and ice cream at Plasko's, or visit the local

Rooms & Interior

3 bedrooms beds
2 full baths
1,887 square feet sq ft

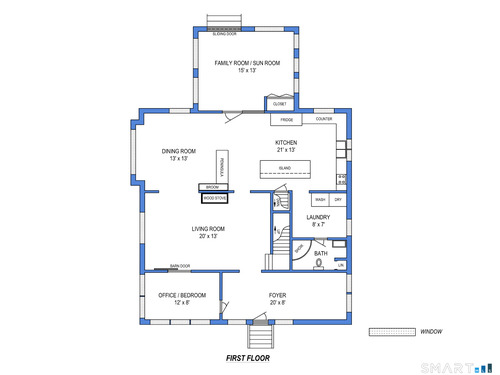
Room Details

  • Living Room (Main Level)
  • Dining Room (Main Level)
  • Primary Bedroom (Upper Level)
  • Bedroom (Upper Level)
  • Bedroom (Upper Level)

Home Features

Heating

  • Fireplaces: 1
  • Heating: hot air
  • Heat fuel type: natural gas

Cooling

  • Ceiling fans

Appliances

  • Oven/range
  • Microwave
  • Refrigerator
  • Dishwasher

Basement

  • Full
  • Unfinished
  • Full with hatchway

Laundry

  • Main level

Property Details

Parking

  • Garage spaces: 2
  • Detached garage
  • Paved
  • Off street parking
  • Driveway

Lot Details

  • Lot surface: 0.45 acres
  • Fence - full
  • Level lot
  • Cleared

Driveway

  • Private
  • Paved
  • Asphalt

Utilities

  • Water: public water connected
  • Sewage: pub. sewer connected

Near-by Amenities

  • Commuter bus
  • Golf course
  • Library
  • Medical facilities
  • Park
  • Playground/tot lot
  • Public transportation
  • Shopping/mall

Construction Details

Style
cape cod

Construction year
1930

Exterior Siding
clapboard

Foundation
block, stone

Roof
asphalt shingle


Open Houses

There are 2 scheduled open houses for 699 Daniels Farm Road, Trumbull, CT.
February 14, 2026 Feb 14, 2026 11:00 - 13:00 (public)
February 15, 2026 Feb 15, 2026 11:00 - 13:00 (public)

Area & Town

This home is located in Hillandale neighborhood, in the town of Trumbull.

Finance & Listing Info

Status Active
Listing date February 10, 2026
List price $ 599,000
Current price $ 599,000
Tax amount $ 9,348
Tax year july 2025-june 2026
MLS ID #24153695
List Agent Delaney Smith
List Office Delrose Realty LLC

699 Daniels Farm Road Home Photos

Because we love Fairfield County!

© Copyright 1999 - 2026 Dagny's LLC. - 20 Windy Ridge Place Wilton, CT 06897 - Terms & Conditions