19 Castle Meadow Rd Newtown, CT, 06470

single family home
$ 386,000 Sold Oct 2, 2025
78 days on market, 97% sale-to-list ratio
  • 3 beds
  • 1 bath
  • 912 sq ft
  • 1955 year built

About the Home

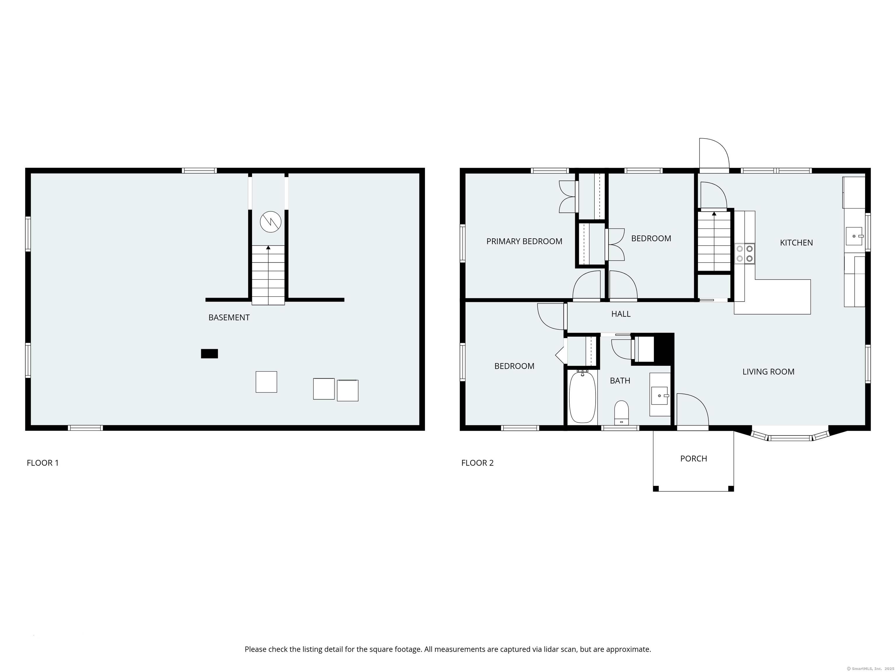
Set in a peaceful Newtown location, this 3-bedroom, 1-bath ranch offers the perfect blend of comfort and convenience. A bright living room and spacious eat-in kitchen make everyday living easy, all within a functional single-level design. The level yard is ready for gardening, play, or relaxation, and a detached garage adds extra storage. Close to schools, parks, and commuter routes, this home is a wonderful opportunity to enjoy all that Newtown has to offer.

Rooms & Interior

3 bedrooms beds
1 full bath
912 square feet sq ft

Room Details

  • Primary Bedroom (Main Level)
  • Bedroom (Main Level)
  • Living Room (Main Level)
  • Dining Room (Main Level)
  • Bedroom (Main Level)

Home Features

Heating

  • Heating: hot air
  • Heat fuel type: oil
  • Fuel tank: in basement

Cooling

  • None

Appliances

  • Oven/range
  • Refrigerator
  • Dishwasher

Attic

  • Access via hatch

Basement

  • Full

Property Details

Parking

  • None

Lot Details

  • Lot surface: 0.43 acres
  • Level lot

Utilities

  • Water: private well
  • Sewage: septic

Construction Details

Style
ranch

Construction year
1955

Exterior Siding
vinyl siding

Foundation
concrete

Roof
asphalt shingle


Area & Town

This home is located in Hattertown neighborhood, in the town of Newtown.

Finance & Listing Info

Status Closed
Listing date October 02, 2025
Closed date December 19, 2025
Days on market 78 days
List price $ 395,000
Close price $ 386,000
Sale-to-list ratio 97%
Tax amount $ 6,444
Tax year july 2025-june 2026
Financing used Chfa
MLS ID #24129914
List Agent Kris Kling
List Office Around Town Real Estate LLC

19 Castle Meadow Road Home Photos

Because we love Fairfield County!

© Copyright 1999 - 2026 Dagny's LLC. - 20 Windy Ridge Place Wilton, CT 06897 - Terms & Conditions